Image

The Ravine

Location

Ubud, Indonesia

Category

Residential

Scope

Masterplanning, Architecture, Landscape, Interior, Product

Awards

  • Architecture Masterprize: Residential Interior, Best of Best Winner
  • FRAME Awards: House of the Year, Shortlist
  • INDE. Awards: The Living Space, Shortlist
Video poster

Nestled within the heart of Ubud’s forests, The Ravine intertwines architecture, nature, and culture to form a residential landmark that transcends the boundaries of the natural and the man-made. Named after the steep gorges that shape the area, the space captures the reverence of Bali for its landscape, standing as an offering of gratitude towards the culture that has breathed it into existence.

A lush open-air space with a beam draped in cascading green vines, a tree, and a low console with woven baskets.
Image
Image

Veiled by a dense curtain of tropical verdure, earth and concrete intertwine in a verse of poetry articulated through space.

Image
Image
Image
Image
Image

An epicurist's veranda.

Image
Image
Image

The layout is framed by generous openings that respect tropical architecture’s connectivity with nature—a connection sacred to Balinese construction, which has long been influenced by its landscape of forests, rice terraces, and fields.

Image
Image
Sketches showing the assembly of a bamboo chair from components, highlighting a joint detail.
Image
Image

The "Sound" coffee table references a Balinese Gendèr; Brass, teak.

A colored woven lantern and two line drawings of similar lanterns on bamboo mounts.
Image
Image

Portable lanterns; Teak, brass, rattan, and porcelain stitched.

In collaboration with Balinese artisans, the home is imbued with hand-woven textiles and traditional weaving—honouring and preserving the region’s living ecology and culture.

Image
Image
Image
Image

A weaved credenza echoing time-honoured sacred percussions: a spiritual invitation.

Image

Gamelan gongs, a traditional Balinese instrument.

Image

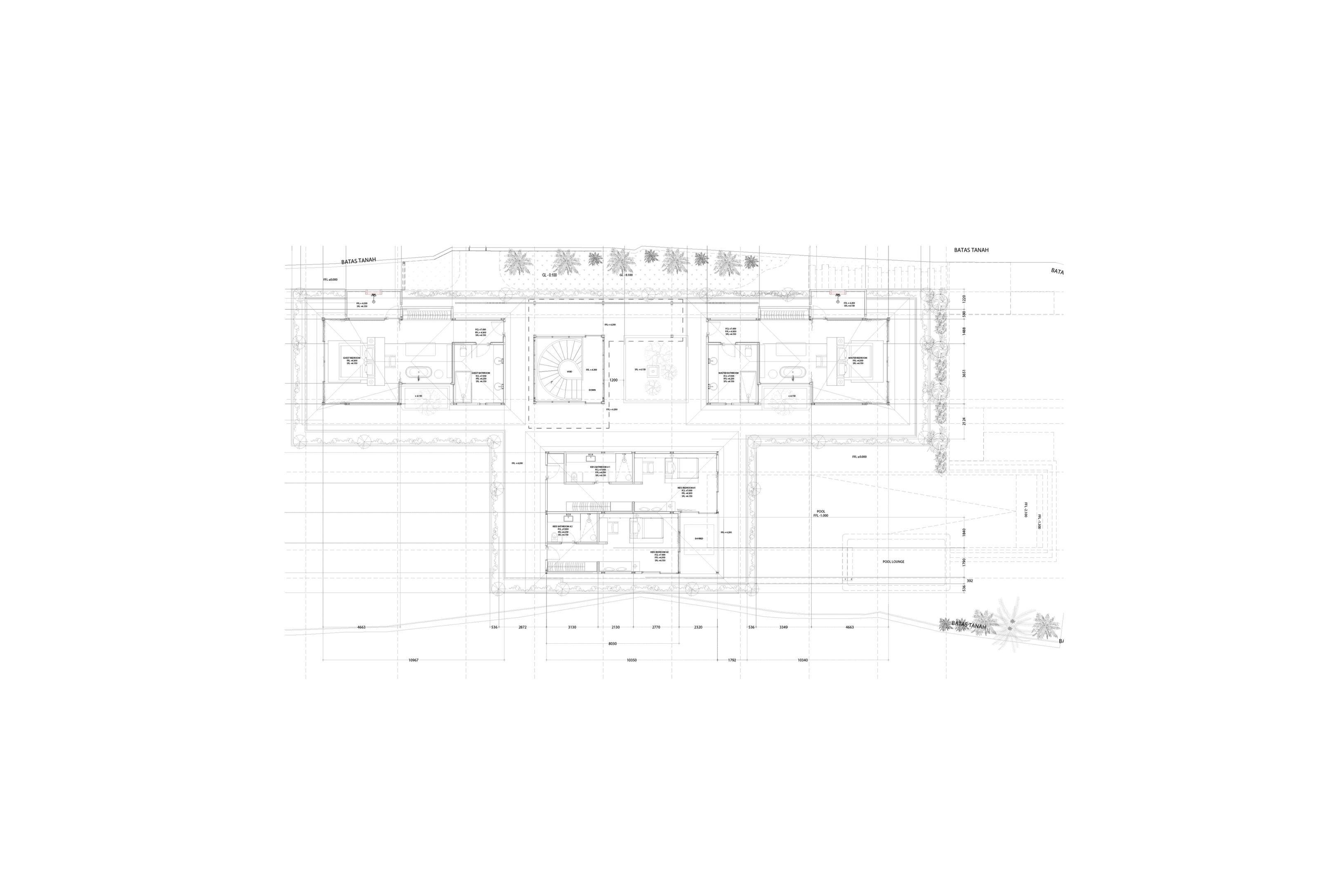
Stand-alone buildings and open corridors, taking after by Bali’s distinctive vernacular architecture, create distinct public and private realms for a family of four.

Image
Image

The exterior concrete has traces of the warmth of surrounding flora, imprinted with stalks of bamboo to express a unique junction of two opposing forces.

Image
Image
Image
Image
| |

Discover Similar Projects:

Chalet Nê

Image

Nasayem

Video poster

Fisherman's Corner

Image